Módulo 4: Cálculo de patrones de sombra en CE3X
Índice
4.1 Patrones de sombra con introducción simplificada – obstáculos rectangulares
4.2 Patrones de sombra con el procedimiento general – definición de polígonos.
a) Sobre muros y ventanas.
b) Sobre cubiertas
4.3 Ejemplo real de patrón de sombras en una vivienda individual
a) Ejemplo 1. Fachada de patio interior.
b) Ejemplo 2. Fachada exterior con edificio enfrente.
Cálculo de patrones de sombra en CE3X
4.1 Patrones de sombra con introducción simplificada – obstáculos rectangulares
Con el programa de CE3X abierto en el panel de Envolvente Térmica hacemos clic en el icono Definición de sombras.

A continuación se abre el panel de Patrones de sombra. Buscamos la opción introducción simplificada y hacemos clic en Obstáculos rectangulares.

Seguidamente se abre el asistente para la definición de patrón de sombras de obstáculos rectangulares.

La opción simplificada para la definición de patrones de sombra es válida para la introducción de obstáculos remotos rectangulares paralelos al elemento sobre el que proyecta sombra. Esta circunstancia se da habitualmente en fachadas exteriores a la vía pública que tiene edificios enfrente que proyectan sombra.
Introducción simplificada
Esta es el procedimiento con la opción simplificada para la definición de patrones de sombras de obstáculos rectangulares:
- Localizar el punto medio o “centro de gravedad” del elemento a estudiar sobre el que se proyecta la sombra en nuestro edificio objeto. En el caso de una vivienda individual una fachada por ejemplo.
- Proyectar una línea perpendicular hasta el obstáculo rectangular. Dicha línea indica la Orientación que tenemos que introducir en CE3X.
- La distancia d es la longitud de la línea trazada en el paso 2.
- Con el obstáculo rectangular delante medimos la distancia d1 y d2, desde la intersección de la línea perpendicular trazada en el paso 2, con el obstáculo rectangular: d1 se mide hacia la izquierda y d2 hacia la derecha.
- La Elevación es la distancia medida en vertical correspondiente a la diferencia de altura entre el punto medio del paso 1 y la altura total del obstáculo rectangular, tal y como se indica en el esquema en perspectiva del asistente de Obstáculos rectangulares de la imagen anterior.
A continuación introducimos los datos en el asistente y hacemos clic en Aceptar. Posteriormente introducimos el Nombre del patrón de sombras y hacemos clic en Guardar patrón.
Por último asignamos el patrón de sombras definido al elemento correspondiente de la envolvente, ya sea un muro de fachada o una ventana. Ver el Ejemplo 2 en el apartado 4.3 Ejemplo real de patrón de sombras en una vivienda individual.
4.2 Patrones de sombra con el procedimiento general – definición de polígonos.
De nuevo con el programa CE3X abierto hacemos clic en el icono Definición de sombras.

a. Sobre muros y ventanas
El procedimiento general para la definición de patrones de sombra, consiste en Definir polígonos (planos), es decir, tenemos que ir introduciendo los vértices que definen los planos que proyectan sombra sobre la fachada o ventana que estamos estudiando. Por lo tanto tenemos que introducir dos valores para cada vértice: el acimut α y la elevación solar ß de cada vértice 1,2,3 y 4. Los puntos 1 y 2 serán los vértices superiores que definen el plano que proyecta sombra. Los puntos 3 y 4 los vértices inferiores.

La imagen superior ha sido extraída del Manual de usuario de CE3X. El edificio 1 proyecta sombra sobre el edificio 2 (edificio objeto). Si se observa, se ha numerado del 1 al 3 los vértices superiores de los planos verticales (polígonos) del edificio 1 que proyectan sombra sobre el edificio 2. Estos serán los polígonos que debemos de introducir en CE3X pero previamente tenemos que calcular el acimut y la elevación solar de cada uno de ellos.
Procedimiento general
El procedimiento para la definición del patrón de sombras con la opción general es el siguiente:
- Localizar el punto medio o “centro de gravedad” del elemento a estudiar sobre el que se proyecta la sombra en nuestro edificio objeto. En el caso de una vivienda individual una fachada por ejemplo.
- Trazar una línea desde dicho punto hasta cada uno de los diferentes vértices de los planos que proyectan sombra y numerarlos.
- Calcular el valor del acimut y de la elevación solar de cada uno de dichos vértices.
A continuación introducimos los datos en el panel Patrones de sombra de CE3X, en Definir polígonos, en los campos asociados. Una vez introducimos hacemos clic en Añadir, y el patrón aparecerá representado en el diagrama solar. Posteriormente introducimos el Nombre del patrón de sombras y hacemos clic en Guardar patrón.
Por último asignamos el patrón de sombras definido al elemento correspondiente de la envolvente. Ver el Ejemplo 1 en el apartado 4.3 Ejemplo real de patrón de sombras en una vivienda individual.
b. Sobre cubiertas
El procedimiento general se utiliza para definir patrones de sombra de elementos verticales y también de elementos horizontales. Los pasos a seguir son exactamente los mismos en ambos casos: identificar el punto medio respecto del que se realiza el cálculo del patrón de sombras en el elemento a estudiar, identificar los planos que proyectan sombra, trazar las líneas desde el punto medio hasta cada vértice, calcular acimut α y elevación solar ß de cada línea trazada e introducir los valores en CE3X.

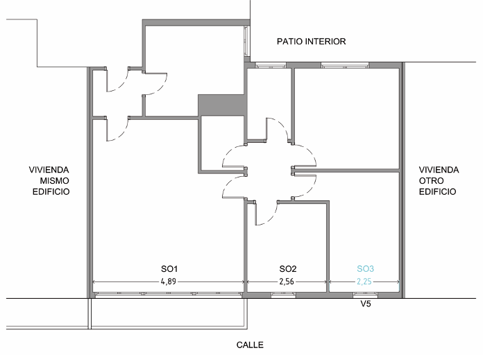
4.3 Ejemplo real de patrón de sombras en una vivienda individual
Para explicar ambos ejemplos vamos a recuperar el ejemplo de la vivienda individual en San Martín de la Vega, utilizado en guías y vídeos anteriores. Una vivienda en la planta primera de un edificio residencial.
El edificio tiene patios interiores y fachadas a la vía pública.
En el Ejemplo 1 se calcula el patrón de sombras de una de las fachadas de la vivienda recayente a patio interior con el procedimiento general.
En el Ejemplo 2 se calcula el patrón de sombras de una fachada de la vivienda recayente a vía pública pero con la introducción simplificada.
Ambos procedimientos sirven para calcular en este caso ambos patrones de sombra, tanto el de fachada a patio interior como el de fachada a vía pública. La principal ventaja del método simplificado es la rapidez del cálculo.

Vista aérea del edificio que contiene la vivienda y el entorno:
Ejemplo 1. Fachada de patio interior.
En la imagen inferior se ha identificado la fachada de la vivienda individual de la cual vamos a calcular el patrón de sombra con el procedimiento general. Una fachada sobre la que proyecta sombra el resto de fachadas que definen el patio interior perteneciente al propio edificio y al edificio adyacente.

En primer lugar, se identifica la fachada en el plano de la vivienda. A continuación hacemos un zoom en el entorno del patio (imagen inferior). Se observa que sobre la fachada SE1 proyectan sombra los planos 1-2, 2-3 y 3-4. Trazamos líneas desde el punto medio de la fachada SE1 hasta cada vértice y medimos su longitud.

A continuación se mide el acimut α de cada vértice y seguidamente se calcula la elevación solar ß.
Cálculo analítico de la elevación solar ß
El cálculo de ß se puede realizar de manera analítica. Para ello calculamos la tangente del cociente entre la longitud L de cada línea y su elevación H. De ahí despejamos el ángulo calculando el arco-tangente de dicho cociente. Ya tenemos el valor de la elevación solar para cada vértice tal y como se muestra en la imagen inferior.

La longitud L para cada vértice se debe de medir en planta para obtener su valor en verdadera magnitud.
Introducción de patrón de sombras con el procedimiento general en CE3X
Desde el panel Patrones de sombras introducimos los valores de acimut α y elevación solar ß de los vértices superiores de cada plano y que hemos calculado previamente.

En la imagen anterior aparece introducido el plano 1-2. CE3X genera los vértices inferiores de manera automática porque interpreta que este plano parte desde el suelo. Si el plano que se introduce no parte desde el suelo, habrá que calcular el valor de acimut y elevación solar correspondiente e introducirlos manualmente para los vértices 3 y 4.
Conforme se introduce cada plano se hace clic en Añadir.
También se puede seleccionar una fila en la tabla y editar los valores introducidos de acimut y elevación solar en el campo asociado a la izquierda.
Para que se guarden los cambios en el diagrama se hace clic en Modificar. Sólo así se modifica en panel en el diagrama solar y los valores en la tabla.
Si nos hemos equivocado y queremos borrar un plano introducido incorrectamente, en este caso seleccionamos la fila correspondiente en la tabla y a continuación se clica en Borrar.
Seguimos con el Ejemplo 1. Se introduce cada uno de los planos que proyectan sombra sobre la fachada Sureste 1 y los vamos añadiendo al diagrama solar hasta obtener el patrón completo.

Por último introducimos el Nombre del patrón de sombras y hacemos clic en Guardar patrón.
Para saber si se ha guardado, el nombre del patrón se incorpora a la lista de Patrones de sombra introducidos, justo debajo en el campo sombreado en gris.
Estos son los valores introducidos:

Una vez definido el Patrón Sombras Sureste 1, lo asociamos a la fachada correspondiente. Para ello, cerramos el panel Patrón de sombras y desde el panel Envolvente térmica seleccionamos la fachada y le asignamos el patrón.

Clic en Modificar para que se guarden los cambios. Hacemos lo mismo con la ventana asociada a esta fachada. Le asignamos el patrón.
Ejemplo 2. Fachada exterior con edificio enfrente.
En este ejemplo vamos a calcular el patrón de sombras de una fachada exterior sobre la que el edificio de enfrente le proyecta sombra con la introducción simplificada. Este es el caso de la fachada Suroeste 3 de la vivienda que estamos utilizando como ejemplo y que aparece acotada en el plano en la imagen.

En la siguiente imagen se muestra el plano de fachada sobre el que vamos a realizar el estudio de patrón de sombras. Se corresponde con la fachada del dormitorio más a la derecha.

Vista a nivel de calle de la vivienda en planta primera.
Para medir las distancias d, d1 y d2 para la introducción simplificada, acudimos a la sede electrónica del catastro, y con la herramienta distancia medimos las longitudes correspondientes.

Estas son las longitudes medidas:

Estas dimensiones pueden variar ligeramente de una medición a otra.
Introducción de patrón de sombras con la introducción simplificada en CE3X
A continuación volvemos a CE3X y abrimos el panel de Patrones de sombra. Seguidamente clicamos en la opción Obstáculos rectangulares e introducimos los valores correspondientes.

Hacemos clic en Aceptar.

Por último introducimos un nombre y hacemos clic en Guardar patrón.

Por último volvemos al panel Envolvente térmica y asignamos el patrón a la fachada Suroeste 3.

Clic en Modificar para que se guarden los cambios, y hacemos lo mismo con la ventana asociada.